mały ogród i elewacja w nowoczesnym rytmie

Minimum formy. Maksimum porządku.

Ogrody Elewacje

Zakres

Projekt koncepcyjny ogrodu, elewacji budynku oraz ogrodzenia

Dane

  • Lokalizacja: Leszno
  • Rok: 2020
  • Powierzchnia: działki: 430 m2
  • Inwestor: Prywatny

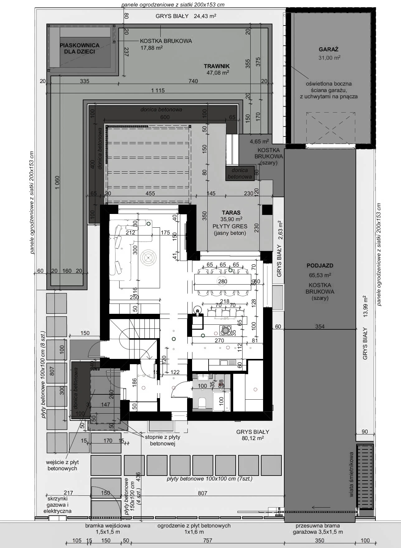
Projekt obejmuje pełne opracowanie zewnętrznej części budynku jednorodzinnego zlokalizowanego na niewielkiej działce w zabudowie jednorodzinnej. Głównym założeniem było stworzenie spójnej, minimalistycznej przestrzeni, w której architektura budynku, ogród oraz ogrodzenie stanowią jedną, konsekwentną kompozycję.

Całość utrzymano w ograniczonej palecie materiałów i kolorów: bieli, jasnego betonu, grafitu oraz naturalnej zieleni. Elewacja budynku została zaprojektowana jako prosta i czytelna, uzupełniona pionowymi lamelami, które porządkują bryłę i nadają jej rytm. Detale architektoniczne, takie jak zintegrowane oświetlenie liniowe, podkreślają geometrię budynku po zmroku.

Ogród zaprojektowano w duchu nowoczesnego minimalizmu, z wyraźnym podziałem na strefy funkcjonalne. Centralnym elementem założenia jest taras z zadaszeniem, które zapewnia komfort użytkowania przez większą część roku. Dodatkowym elementem chroniącym przed słońcem jest lekka przysłona z żagla, stanowiąca subtelny kontrapunkt dla bardziej masywnych elementów architektury.

W projekcie zastosowano betonowe donice, płyty chodnikowe układane jako luźne przejścia w zieleni oraz proste nasadzenia, które nie konkurują z architekturą, lecz ją dopełniają. Charakter ogrodzenia podkreśla masywna forma wykonana z betonowych elementów typu „L”, zestawiona z lekką, ażurową bramą wjazdową i furtką z pionowych metalowych profili.

Schody wejściowe zaprojektowano jako lewitujące płyty betonowe, prowadzące wprost do strefy wejścia, podkreślając nowoczesny i uporządkowany charakter całego założenia. Całość tworzy spokojną, konsekwentną przestrzeń, w której każdy element ma swoje jasno określone miejsce i funkcję.

Projekt stanowi przykład minimalizmu opartego na proporcji, materiale i detalu, zaprojektowanego z myślą o codziennym komforcie użytkowania oraz trwałości rozwiązań.

mały ogród i elewacja w nowoczesnym rytmie - rysunek — rysunek techniczny, projekt ogrodu i elewacji, Leszno 2024 | Potrzeba Projekty
mały ogród i elewacja w nowoczesnym rytmie - rysunek — rysunek techniczny, projekt ogrodu i elewacji, Leszno 2024 | Potrzeba Projekty
mały ogród i elewacja w nowoczesnym rytmie - rysunek — rysunek techniczny, projekt ogrodu i elewacji, Leszno 2024 | Potrzeba Projekty
mały ogród i elewacja w nowoczesnym rytmie - rysunek — rysunek techniczny, projekt ogrodu i elewacji, Leszno 2024 | Potrzeba Projekty