Duży ogród przy stawie

Precyzyjnie zaprojektowany spokój.

Ogrody

Zakres

Projekt wykonawczy ogrodu i ogrodzenia

Dane

  • Lokalizacja: Gostyń
  • Rok: 2025
  • Powierzchnia: działka: 3900 m2
  • Inwestor: prywatny

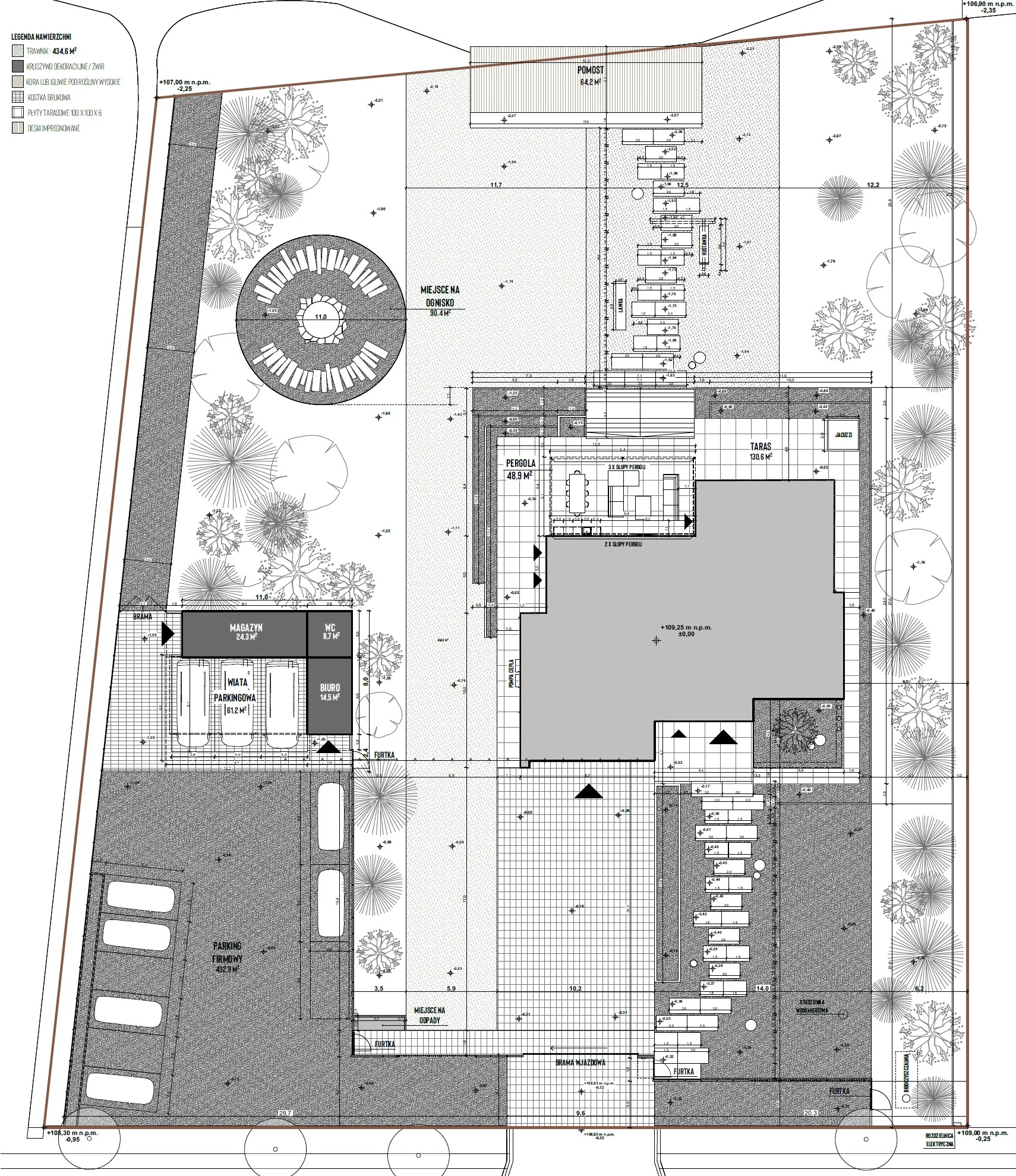
Projekt obejmuje pełne zagospodarowanie dużej działki położonej przy stawie, dla której najważniejszym założeniem było świadome zaprojektowanie wrażenia naturalnej, dzikiej przestrzeni, mimo że całość została w pełni ukształtowana od podstaw.

Zieleń wysoka – w tym grupy drzew oraz większe nasadzenia – została zaplanowana jako element budujący intymność, tło krajobrazowe oraz naturalne ramy dla architektury i stref użytkowych. Celem nie było odtworzenie przypadkowej dzikości, lecz stworzenie kontrolowanego, naturalnego krajobrazu, który z czasem będzie dojrzewał i coraz mocniej integrował się z otoczeniem.

Pomimo znacznej powierzchni działki, po dokładnym określeniu funkcji i potrzeb użytkowników przestrzeń została zaprojektowana bardzo precyzyjnie. Ograniczono powierzchnię trawnika do jednej, zoptymalizowanej strefy, dostosowanej do pracy robota koszącego. Pozostałą część ogrodu wypełniają nasadzenia wielowarstwowe, żwiry, ścieżki i strefy wypoczynku, co znacząco zmniejsza nakład pracy związany z utrzymaniem ogrodu.

Centralnym elementem założenia jest rozbudowana strefa tarasowa – miejsce codziennego życia na świeżym powietrzu. Zaprojektowano nowoczesne zadaszenie z ruchomych lameli, umożliwiających regulację światła i cienia. Pod zadaszeniem przewidziano letnią kuchnię, strefę wypoczynku oraz miejsce na telewizor, z bezpośrednim widokiem na staw. W dalszej części działki zaplanowano pomost prowadzący w stronę wody oraz strefę jacuzzi, jako alternatywę dla basenu. Długie, czytelne ciągi komunikacyjne prowadzą przez ogród, zachęcając do spacerów i odkrywania kolejnych fragmentów przestrzeni.

Strefa ogniska została celowo zlokalizowana wśród zaprojektowanych grup drzew, tak aby w przyszłości stała się bardziej intymna i odseparowana wizualnie. Uzupełnieniem są ławki, w tym ozdobna ławka bujana, które pełnią zarówno funkcję użytkową, jak i element kompozycji ogrodu.

Całość dopełniają charakterystyczne detale: lewitujące schody, donice z białego betonu, elementy dekoracyjne z blachy o rdzawym wykończeniu oraz nastrojowe oświetlenie LED i świetlne kule, które po zmroku podkreślają strukturę i klimat przestrzeni.

Projekt pokazuje, że dzikość może być zaprojektowana, a ogród – mimo swojej skali – pozostaje funkcjonalny, łatwy w utrzymaniu i dopasowany do stylu życia inwestorów.

Duży ogród przy stawie - rysunek — rysunek techniczny, projekt ogrodu, Gostyń 2023 | Potrzeba Projekty