Dom z ukrytą biblioteką

klimatyczne wnętrze w ciemnej tonacji

Wnętrza

Zakres

Projekt wykonawczy wnętrz całego domu

Dane

  • Lokalizacja: Leszno
  • Rok: 2020
  • Powierzchnia: użytkowa: 120 m2
  • Inwestor: Prywatny

Projekt wnętrz domu w zabudowie szeregowej, zaprojektowany z myślą o stworzeniu spójnej, nastrojowej przestrzeni o wyraźnie architektonicznym charakterze. Całość utrzymana została w ciemnej, stonowanej kolorystyce, przełamanej naturalnym drewnem, kamieniem oraz starannie zaprojektowanym oświetleniem, które buduje klimat i podkreśla podziały funkcjonalne.

Jednym z najbardziej charakterystycznych elementów projektu jest ukryta biblioteczka, dyskretnie wkomponowana w zabudowę ściany telewizyjnej. Pełni ona nie tylko funkcję miejsca do czytania i relaksu, ale stanowi również element zaskoczenia i prywatnej strefy wyciszenia, niemal niewidocznej na pierwszy rzut oka.

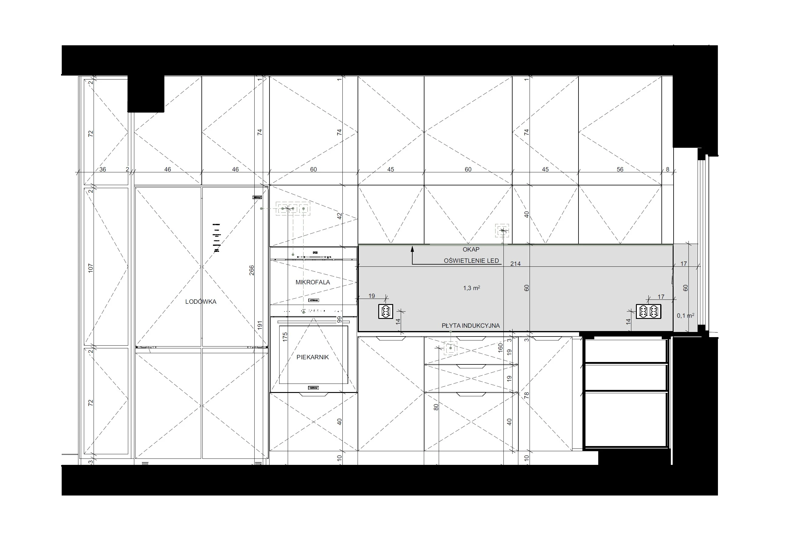
Układ parteru oparto na otwartej strefie dziennej z salonem, jadalnią i kuchnią, zachowując jednak czytelny podział przestrzeni. Kuchnia została zaprojektowana jako funkcjonalna i minimalistyczna, z zabudową sięgającą sufitu oraz subtelnym podświetleniem blatu roboczego. Jadalnia stanowi naturalne połączenie między kuchnią a salonem, a jej centralnym punktem jest duży stół oraz dekoracyjne oświetlenie.

W projekcie dużą wagę przywiązano do detalu i światła – zastosowano oświetlenie liniowe, podświetlenia wnęk, luster oraz zabudów, co pozwala na budowanie nastroju w zależności od pory dnia. Na piętrze zaprojektowano prywatną strefę nocną z sypialnią, garderobą, pokojami oraz łazienką z wanną i prysznicem, gdzie naturalne światło współgra z ciepłym, miękkim oświetleniem sztucznym.

Wnętrze zostało zaprojektowane jako przyjazne zwierzętom – przewidziano dyskretne przejścia do stref dla psa i kota, miejsca na legowiska oraz miski, zintegrowane z zabudową meblową, bez zaburzania estetyki wnętrza.

Projekt łączy nowoczesną funkcjonalność z nastrojową estetyką, tworząc przestrzeń dopasowaną do codziennego życia, a jednocześnie wyraźnie odzwierciedlającą charakter i styl właścicieli.

Dom z ukrytą biblioteką - rysunek — rysunek techniczny, projekt wnętrz, Leszno 2023 | Potrzeba Projekty
Dom z ukrytą biblioteką - rysunek — rysunek techniczny, projekt wnętrz, Leszno 2023 | Potrzeba Projekty
Dom z ukrytą biblioteką - rysunek — rysunek techniczny, projekt wnętrz, Leszno 2023 | Potrzeba Projekty
Dom z ukrytą biblioteką - rysunek — rysunek techniczny, projekt wnętrz, Leszno 2023 | Potrzeba Projekty