Dom parterowy z płaskim dachem w Lesznie

Maksimum przestrzeni na minimum działki.

Domy

Zakres

Projekt budowlany i techniczny budynku jednorodzinnego

Dane

  • Lokalizacja: Leszno
  • Rok: 2017
  • Powierzchnia: Działka: 650 m2
    użytkowa: 140 m2
  • Inwestor: Prywatny

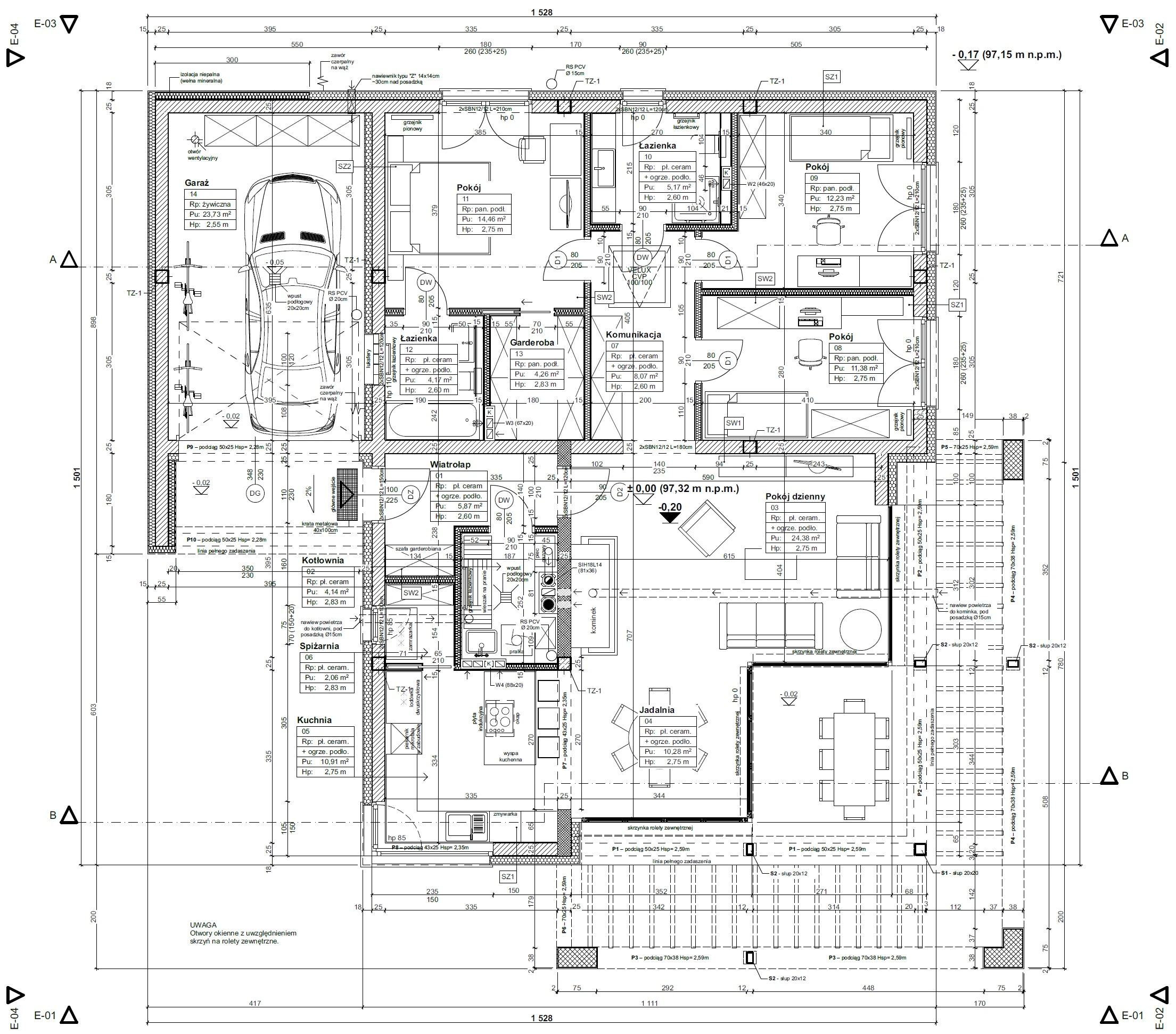
Projekt parterowego domu jednorodzinnego z płaskim dachem, zrealizowany na bardzo wymagającej, ciasnej działce. Budynek zaprojektowano na faktycznie połowie dostępnego terenu, w bezpośrednim sąsiedztwie istniejącej zabudowy, co wymagało precyzyjnego wykorzystania przestrzeni oraz świadomych decyzji funkcjonalnych i formalnych.

Garaż został dostawiony i usytuowany bezpośrednio przy granicy działki, co pozwoliło uwolnić maksymalną powierzchnię ogrodu od strony południowej. Strefa dzienna została doświetlona właśnie z tej strony, zapewniając dobre nasłonecznienie wnętrz i bezpośrednie powiązanie z tarasem.

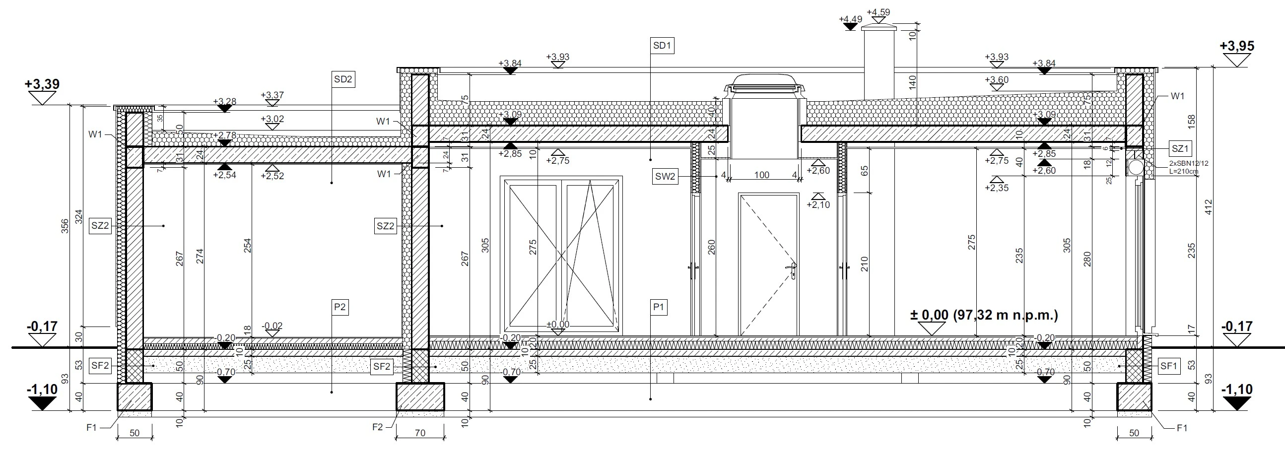
Projekt przewiduje zadaszenie tarasu oraz lekką pergolę opartą na dekoracyjnych belkach zewnętrznych, które porządkują elewację i budują półprywatną strefę wypoczynku. Charakterystycznym elementem budynku jest efektowne okno narożne w kuchni, podkreślające nowoczesny charakter domu i otwierające wnętrze na ogród.

Całość oparto na prostej, czytelnej bryle z płaskim dachem, gdzie forma wynika bezpośrednio z ograniczeń działki i potrzeb użytkowych, a architektura stanowi konsekwentną odpowiedź na trudne warunki lokalizacyjne.

Dom parterowy z płaskim dachem w Lesznie - rysunek — rysunek techniczny, dom jednorodzinny, Leszno 2024 | Potrzeba Projekty
Dom parterowy z płaskim dachem w Lesznie - rysunek — rysunek techniczny, dom jednorodzinny, Leszno 2024 | Potrzeba Projekty