Dom parterowy z płaskim dachem w Wilkowicach

Zamknięty od ulicy. Otwarty na ogród.

Domy

Zakres

Projekt budowlany i techniczny budynku jednorodzinnego

Dane

  • Lokalizacja: Leszno – Wilkowice
  • Rok: 2016
  • Powierzchnia: Działka: 6000 m2
    użytkowa: 224 m2
  • Inwestor: Prywatny

Projekt parterowego budynku jednorodzinnego z płaskim dachem w Wilkowicach, oparty na czytelnym kontraście pomiędzy stroną frontową a ogrodową. Od strony ulicy budynek przyjmuje zamkniętą, minimalistyczną formę z ograniczoną liczbą otworów okiennych, co zapewnia wysoki poziom prywatności i spokoju domownikom.

Od strony ogrodu bryła całkowicie się otwiera – zaprojektowano długi ciąg pomieszczeń mieszkalnych i sypialnianych, doświetlonych dużymi przeszkleniami oraz osłoniętych zadaszeniem, które pełni funkcję strefy pośredniej między wnętrzem a ogrodem. Prosta, horyzontalna forma budynku została podkreślona płaskim dachem oraz konsekwentną kolorystyką elewacji.

Minimalistyczne rozwiązania materiałowe, czyste linie oraz logiczny układ funkcjonalny sprawiają, że budynek jest czytelny w odbiorze, a jednocześnie bardzo komfortowy w codziennym użytkowaniu. Projekt skupia się na relacji domu z ogrodem, prywatności mieszkańców oraz prostocie formy, bez zbędnych elementów dekoracyjnych.

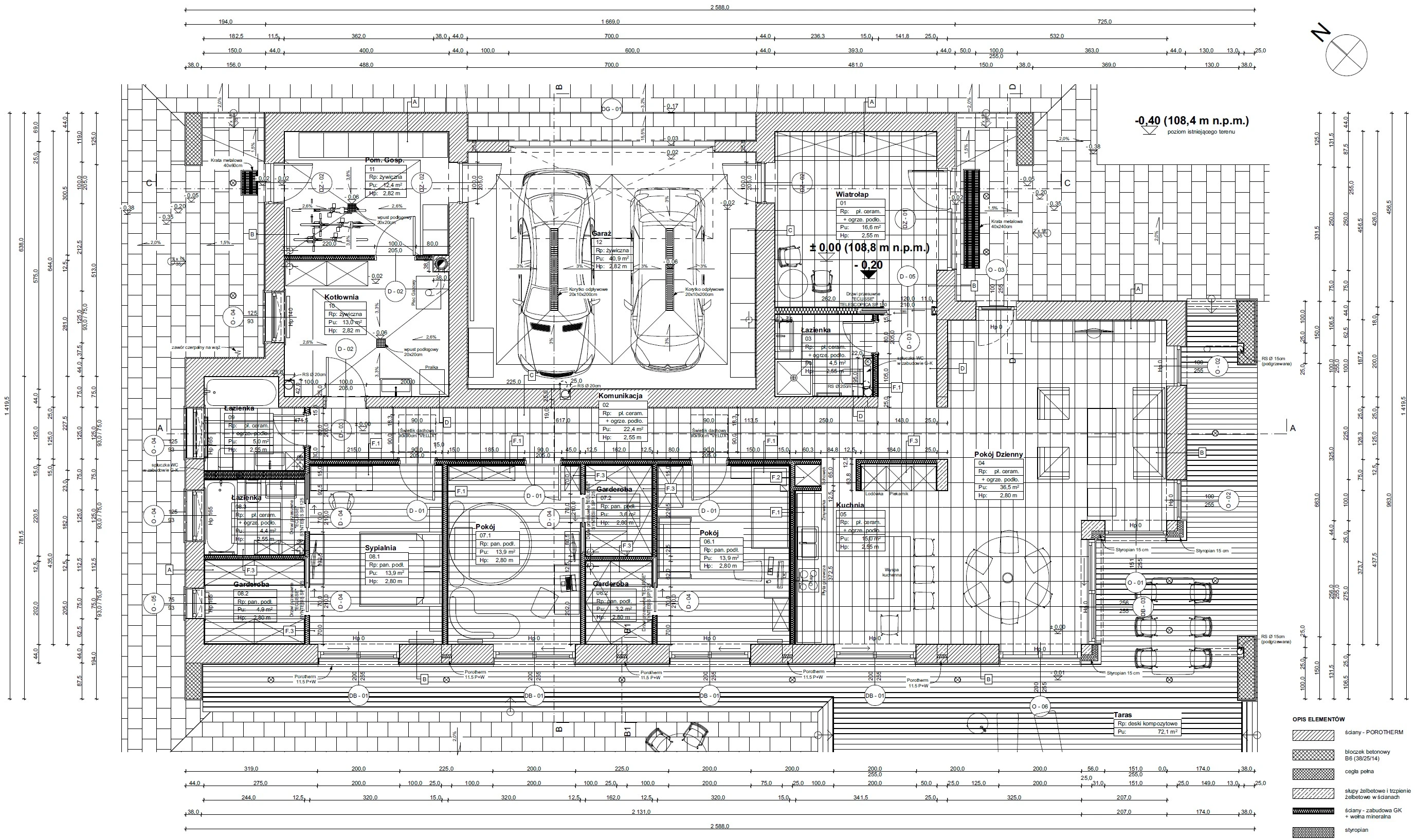
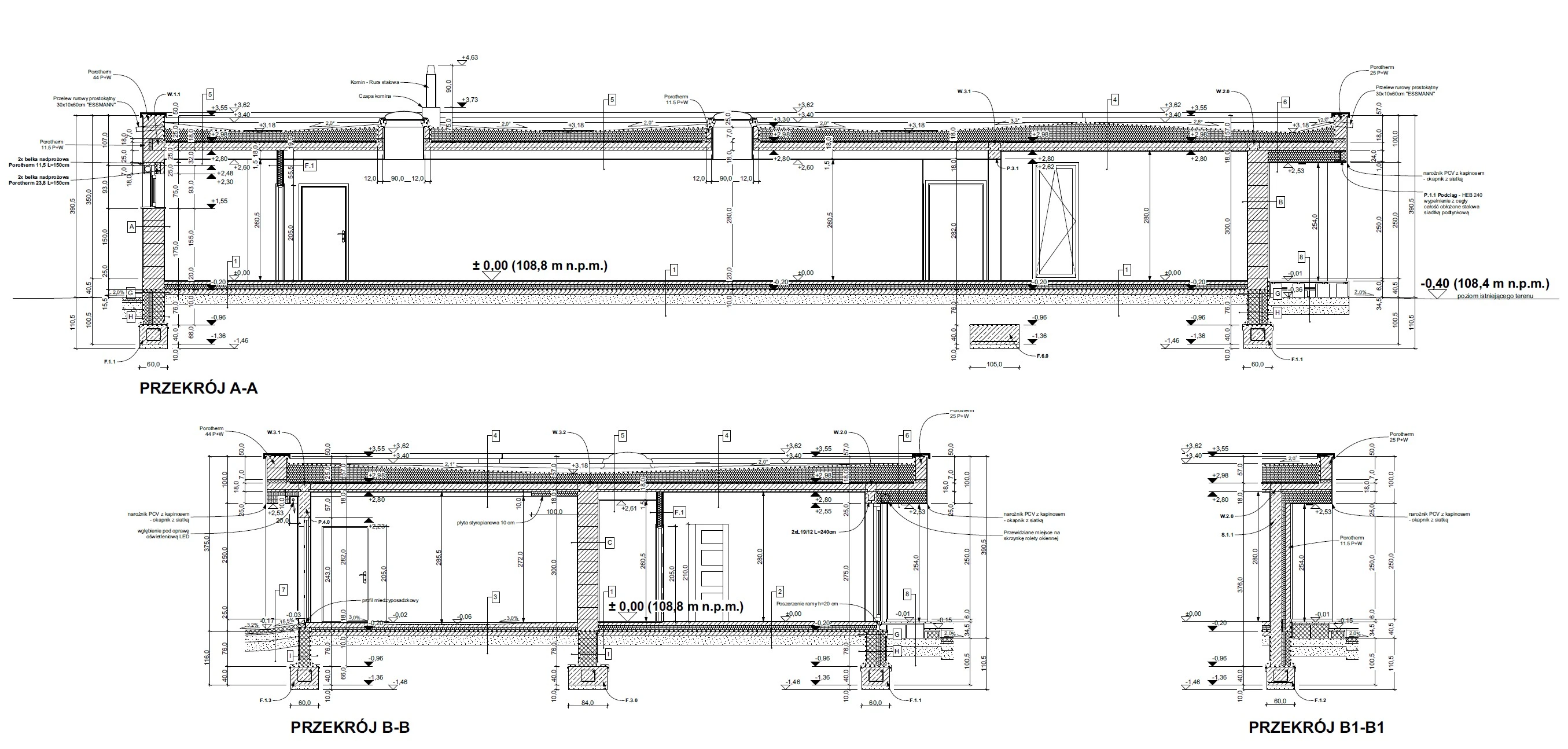
Dom parterowy z płaskim dachem w Wilkowicach - rysunek — rysunek techniczny, dom jednorodzinny, Wilkowice 2023 | Potrzeba Projekty
Dom parterowy z płaskim dachem w Wilkowicach - rysunek — rysunek techniczny, dom jednorodzinny, Wilkowice 2023 | Potrzeba Projekty
Dom parterowy z płaskim dachem w Wilkowicach - rysunek — rysunek techniczny, dom jednorodzinny, Wilkowice 2023 | Potrzeba Projekty