Czarny dom w Wilkowicach

Geometria formy. Kontrolowany minimalizm.

Domy

Zakres

Projekt budowlany i techniczny budynku. Koordynacja całego procesu projektowego i wykonawczego. Nadzór autorski

Dane

  • Lokalizacja: Leszno – Wilkowice
  • Rok: 2018
  • Powierzchnia: Działka: 744 m2
    użytkowa: 243 m2
  • Inwestor: Prywatny

Projekt awangardowego domu jednorodzinnego, który świadomie łamie schematy klasycznej zabudowy jednorodzinnej. Zwarta, jednolita bryła o wyrazistej, czarnej elewacji została zaprojektowana bez okapów, balkonów i zbędnych detali, co podkreśla surowy, minimalistyczny charakter budynku.

Forma oparta jest na czytelnej geometrii i konsekwentnej prostocie. Różnorodność i rytm elewacji budują nieregularnie rozmieszczone otwory okienne, które nadają bryle żywy, nieoczywisty wyraz – kontrolowany „nieporządek” wpisany w spójną kompozycję.

Kompaktowa bryła sprzyja wysokiej efektywności energetycznej budynku. Zastosowano bardzo dobre parametry izolacyjne – ściany zewnętrzne ocieplone warstwą 20 cm izolacji oraz dach z 30 cm izolacji – co przekłada się na niskie zapotrzebowanie na energię i komfort użytkowania.

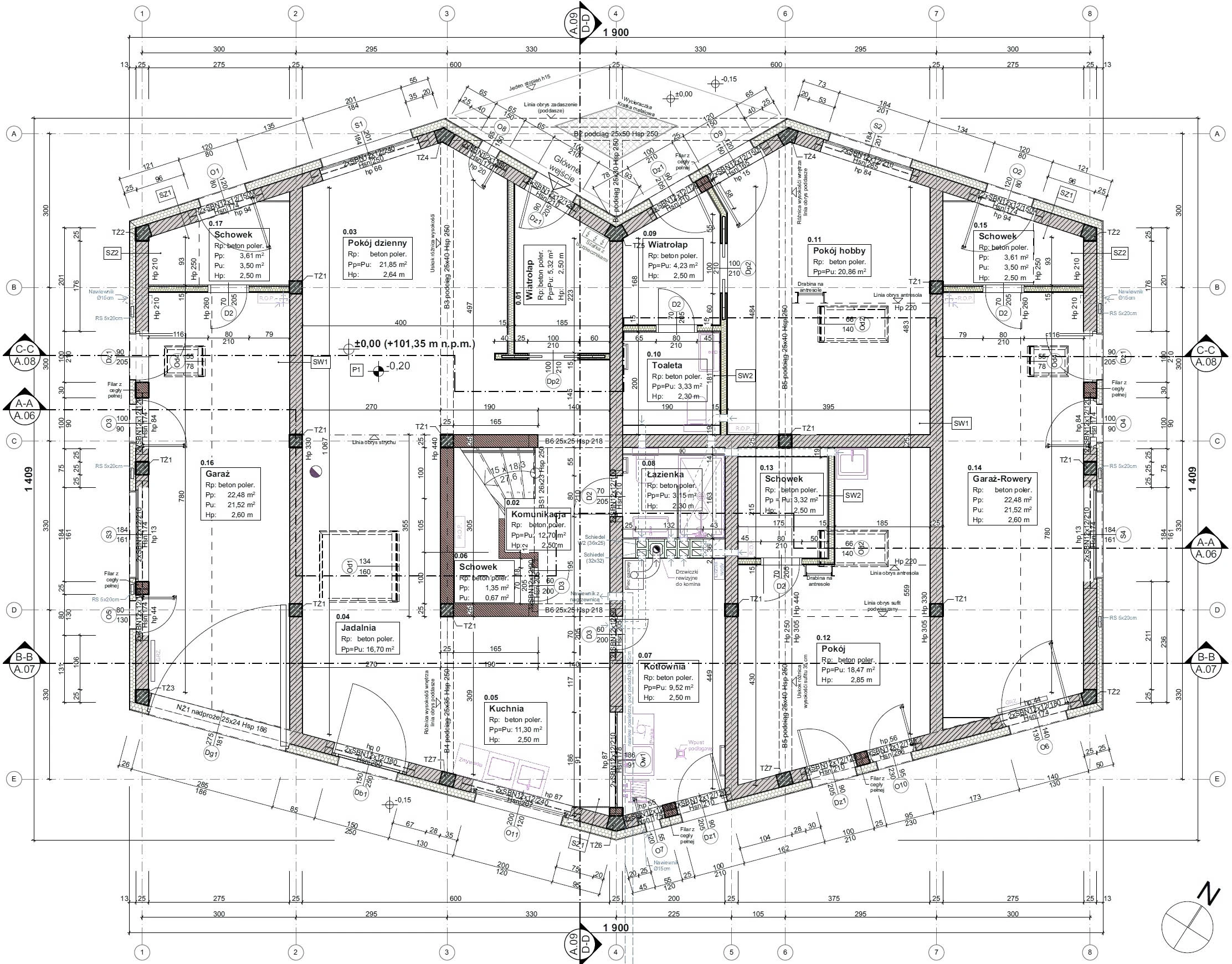
Czarny dom w Wilkowicach - rysunek — rysunek techniczny, dom jednorodzinny, Wilkowice 2022 | Potrzeba Projekty
Czarny dom w Wilkowicach - rysunek — rysunek techniczny, dom jednorodzinny, Wilkowice 2022 | Potrzeba Projekty
Czarny dom w Wilkowicach - rysunek — rysunek techniczny, dom jednorodzinny, Wilkowice 2022 | Potrzeba Projekty
Czarny dom w Wilkowicach - rysunek — rysunek techniczny, dom jednorodzinny, Wilkowice 2022 | Potrzeba Projekty