Kompaktowe wnętrze z charakterem – mieszkanie w Lesznie

Mały metraż. Przemyślany detal. Maksymalna funkcja.

Wnętrza

Zakres

Projekt koncepcyjny oraz wykonawczy mieszkania

Dane

  • Lokalizacja: Leszno
  • Rok: 2018
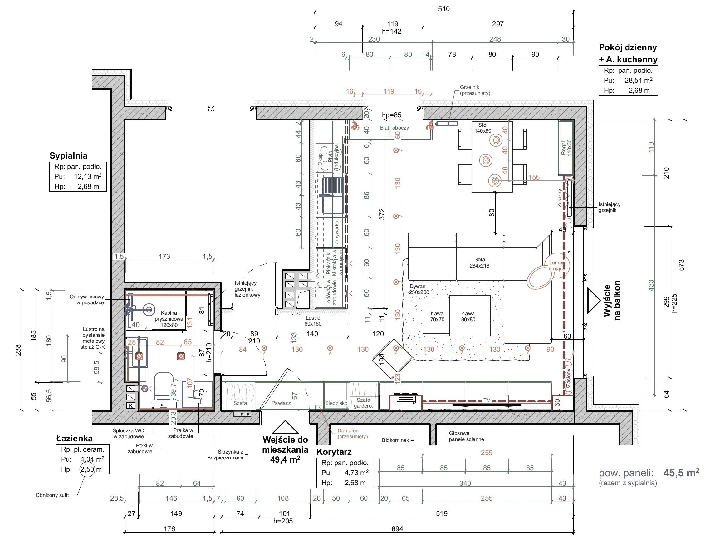
  • Powierzchnia: Użytkowa: 49 m2
  • Inwestor: Prywatny

Projekt niewielkiego mieszkania w Lesznie był wyzwaniem polegającym na maksymalnym wykorzystaniu dostępnej przestrzeni przy zachowaniu komfortu, estetyki i funkcjonalności wnętrza. Zakres opracowania objął pełny projekt pokoju dziennego z aneksem kuchennym, strefy wejściowej, łazienki oraz zabudów stałych.

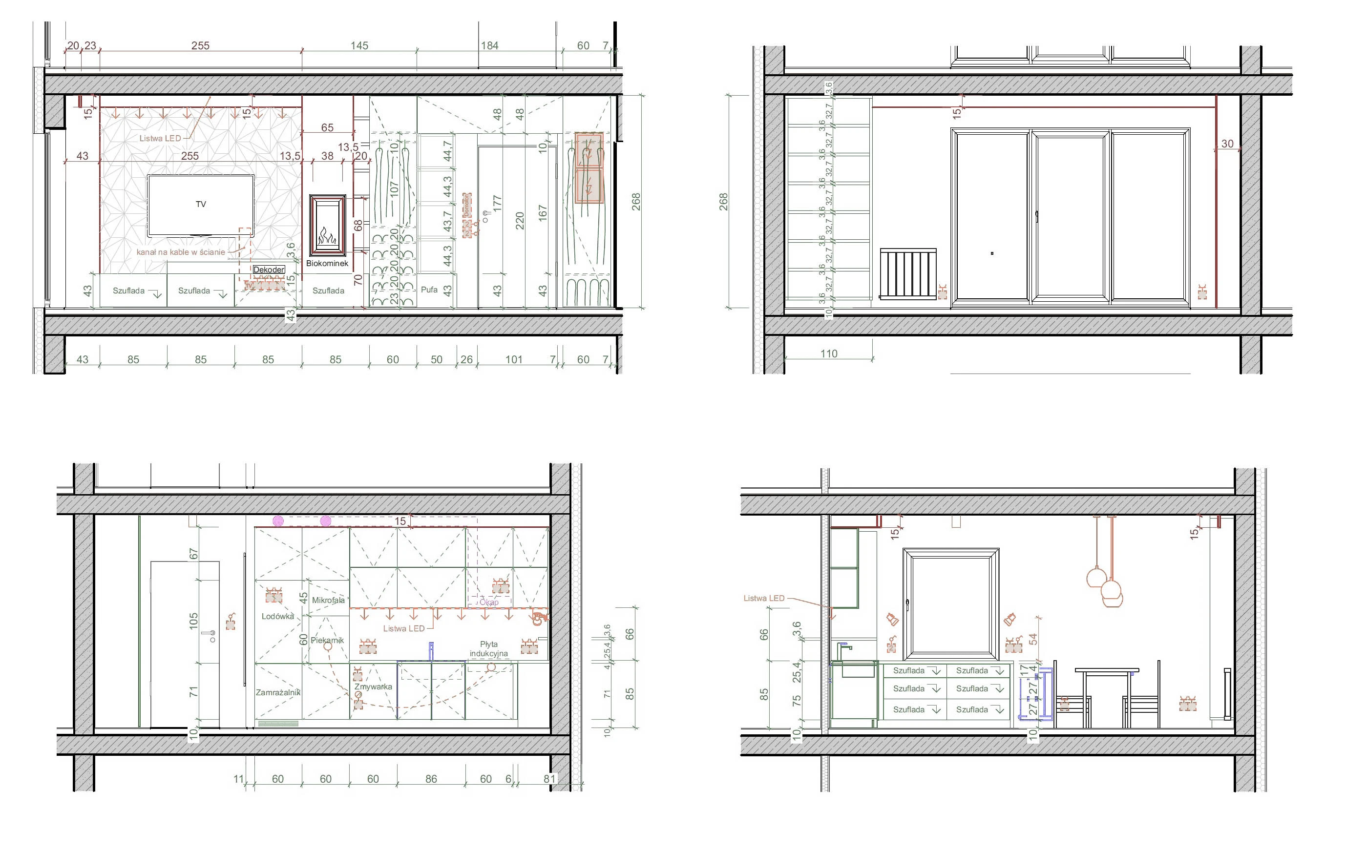
Szczególną uwagę poświęcono zabudowie kuchennej, zaprojektowanej na wymiar z myślą o ergonomii i dużej ilości miejsca do przechowywania. Układ szafek, wysokości półek oraz rozmieszczenie sprzętów AGD zostały dokładnie dopasowane do realnych potrzeb użytkownika.

W mieszkaniu zaprojektowano również zabudowy garderobiane, uwzględniające różne typy przechowywania – od odzieży wiszącej, przez półki na ubrania, po dedykowane miejsce na obuwie. Strefa dzienna została uzupełniona o ścianę TV z biokominkiem, która stanowi wyraźny akcent wizualny i jednocześnie buduje przytulny charakter wnętrza.

Całość utrzymana jest w spójnej, nowoczesnej stylistyce, z neutralną paletą barw, naturalnymi materiałami i starannie dobranym oświetleniem. Projekt pokazuje, że nawet niewielki metraż może być w pełni funkcjonalny, estetyczny i dopasowany do codziennego życia.

Kompaktowe wnętrze z charakterem – mieszkanie w Lesznie - rysunek — rysunek techniczny, projekt wnętrz, Leszno 2024 | Potrzeba Projekty
Kompaktowe wnętrze z charakterem – mieszkanie w Lesznie - rysunek — rysunek techniczny, projekt wnętrz, Leszno 2024 | Potrzeba Projekty