Nowoczesny dom z płaskim dachem – Piotrowice

Prosta forma. Czytelna architektura. Komfort na co dzień.

Domy

Zakres

Koncepcyjny projekt budynku jednorodzinnego

Dane

  • Lokalizacja: Powiat Leszczyński – Piotrowice
  • Rok: 2021
  • Powierzchnia: Użytkowa: 212m2
  • Inwestor: Prywatny

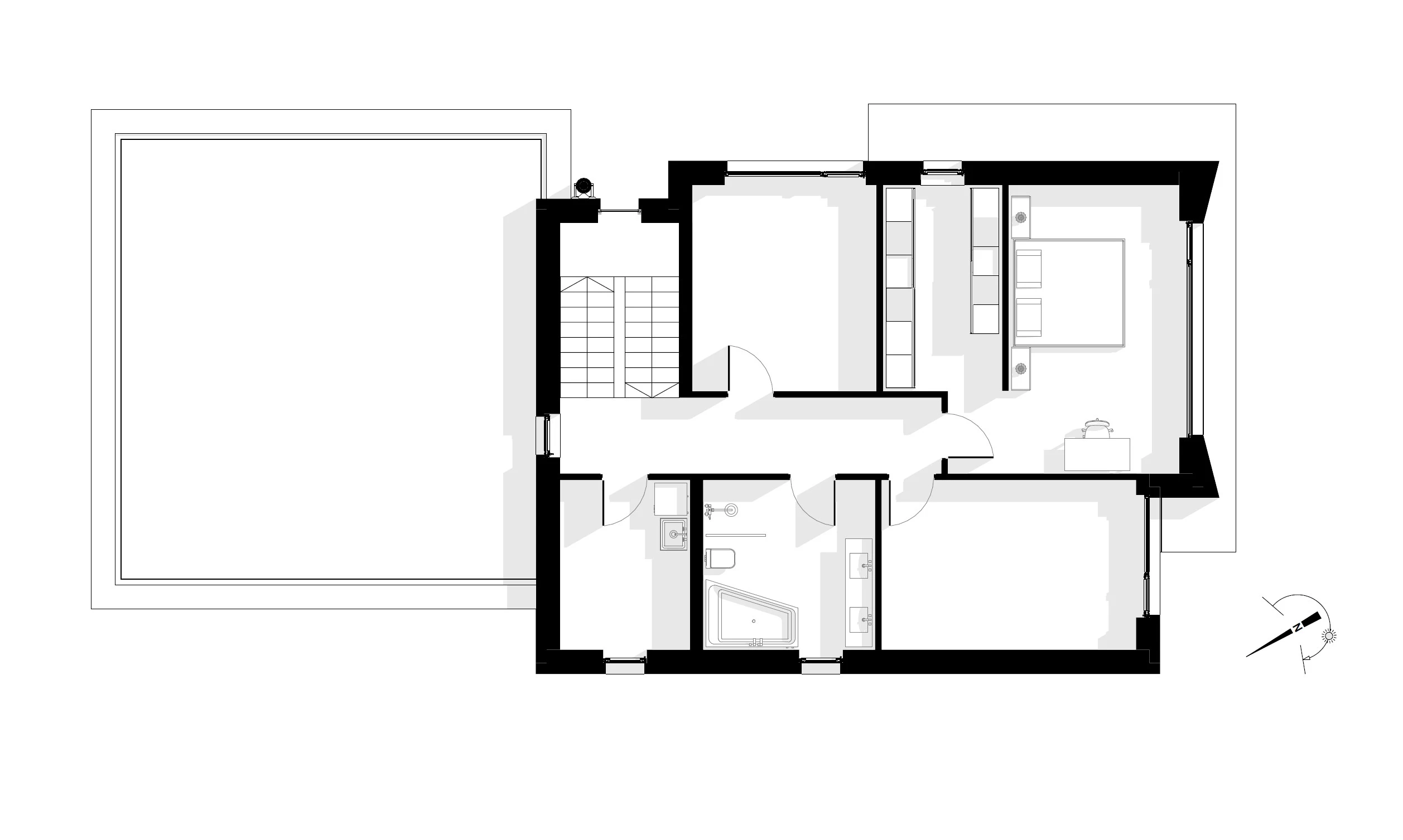
Projekt powstał jako koncepcja nowoczesnego domu jednorodzinnego, przygotowana z myślą o czytelnym przedstawieniu bryły i funkcji jeszcze na etapie wczesnych decyzji inwestora. Dwukondygnacyjny budynek z płaskim dachem zaprojektowano w minimalistycznej stylistyce, z wyraźnym podziałem na strefę dzienną i prywatną.

Duże przeszklenia otwierają wnętrza na ogród, a prosta, geometryczna forma elewacji podkreśla współczesny charakter budynku. Wizualizacje 3D pozwoliły inwestorowi realnie ocenić skalę obiektu, proporcje oraz relację domu z otoczeniem jeszcze przed rozpoczęciem dalszych prac projektowych.

Nowoczesny dom z płaskim dachem – Piotrowice - rysunek — rysunek techniczny, dom jednorodzinny, Piotrowice 2024 | Potrzeba Projekty
Nowoczesny dom z płaskim dachem – Piotrowice - rysunek — rysunek techniczny, dom jednorodzinny, Piotrowice 2024 | Potrzeba Projekty
Nowoczesny dom z płaskim dachem – Piotrowice - rysunek — rysunek techniczny, dom jednorodzinny, Piotrowice 2024 | Potrzeba Projekty
Nowoczesny dom z płaskim dachem – Piotrowice - rysunek — rysunek techniczny, dom jednorodzinny, Piotrowice 2024 | Potrzeba Projekty