Budynek dwulokalowy w Kłodzie

Prosta architektura dla dwóch rodzin

Inwestycje

Zakres

Koncepcyjny projekt budynku dwulokalowego, wykonanie rysunków architektonicznych i budowlanych

Dane

  • Lokalizacja: Powiat Leszczyński – Kłoda
  • Rok: 2020
  • Powierzchnia: Użytkowa: 300 m2
  • Inwestor: Deweloper

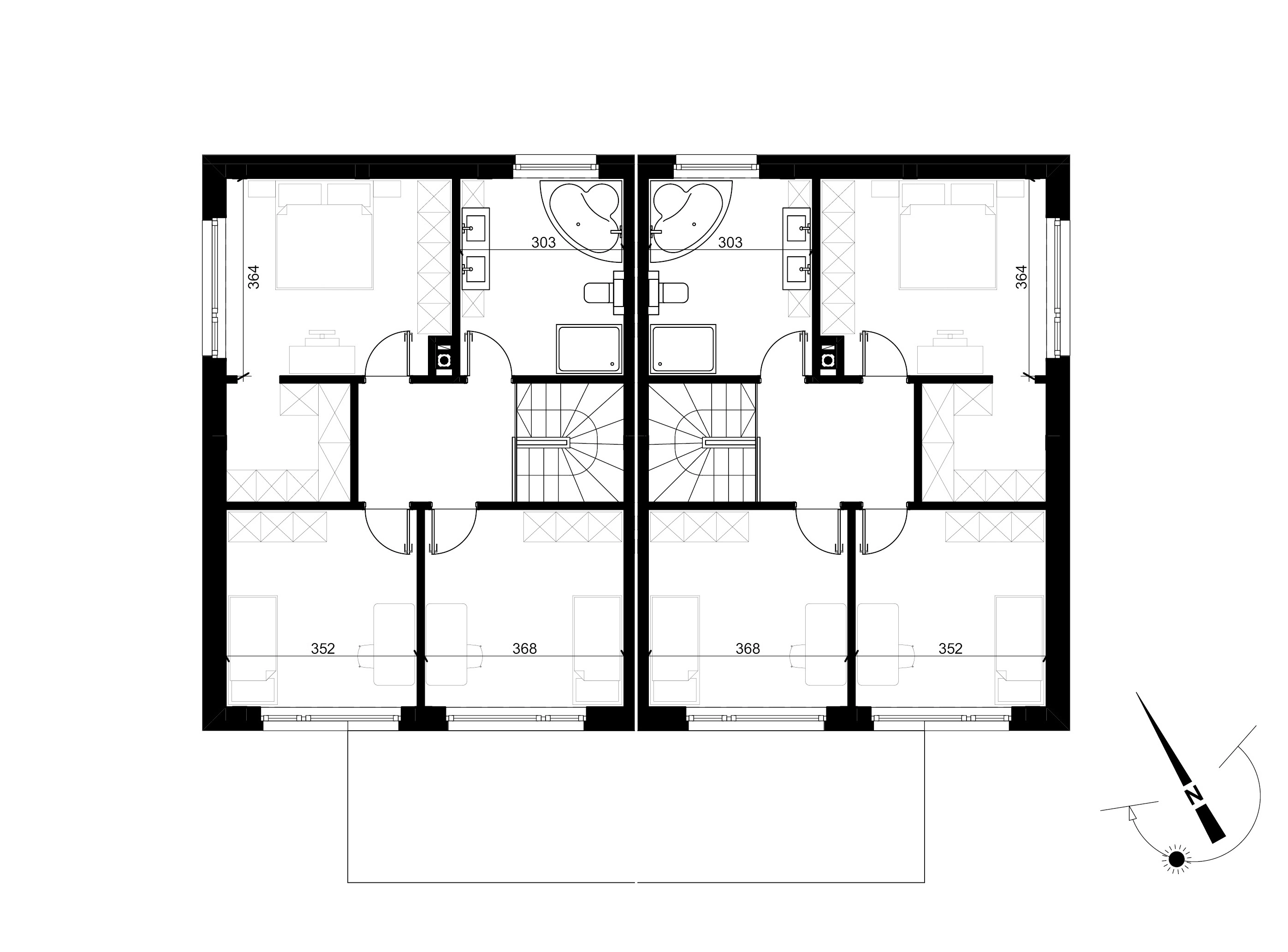
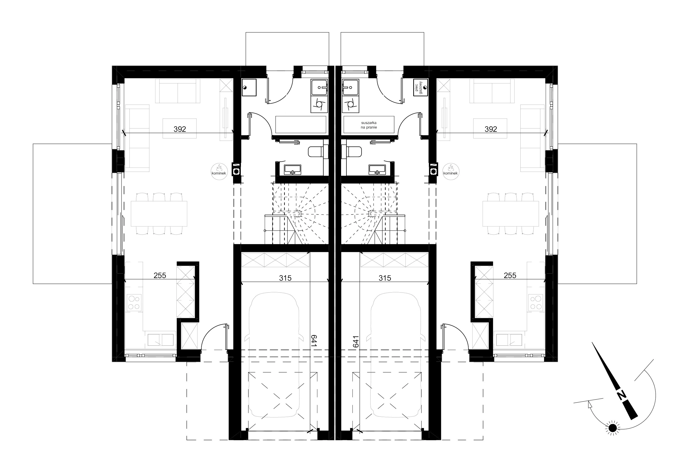
Projekt budynku dwulokalowego oparty na maksymalnie prostej, racjonalnej formie – zaprojektowany z myślą o efektywnej i bezproblemowej realizacji deweloperskiej. Zwarta bryła, nieskomplikowana konstrukcja oraz dach oparty na wiązarach dachowych pozwoliły ograniczyć koszty budowy i przyspieszyć realizację inwestycji.

Istotnym atutem jest pełnowymiarowe piętro bez skosów, co przekłada się na komfortowe i ustawne pomieszczenia. Centralnie usytułowana klatka schodowa minimalizuje powierzchnię komunikacji i poprawia funkcjonalność obu lokali. Każde z mieszkań posiada własny taras zlokalizowany po przeciwnej stronie budynku, co zapewnia mieszkańcom prywatność i niezależność mimo wspólnej bryły.

Budynek dwulokalowy w Kłodzie - rysunek — rysunek techniczny, budynek mieszkalny, Kłoda 2023 | Potrzeba Projekty
Budynek dwulokalowy w Kłodzie - rysunek — rysunek techniczny, budynek mieszkalny, Kłoda 2023 | Potrzeba Projekty