Budynek siedziby Kosmala Electric

Nowoczesna forma dla nowoczesnej firmy.

Inwestycje

Zakres

Projekt budowlany i techniczny w zakresie architektury oraz konstrukcji budynku usługowo-magazynowego

Dane

  • Lokalizacja: Leszno
  • Rok: 2025
  • Powierzchnia: Działki: 3000 m2
    użytkowa: 854 m2
  • Inwestor: Kosmala Electric

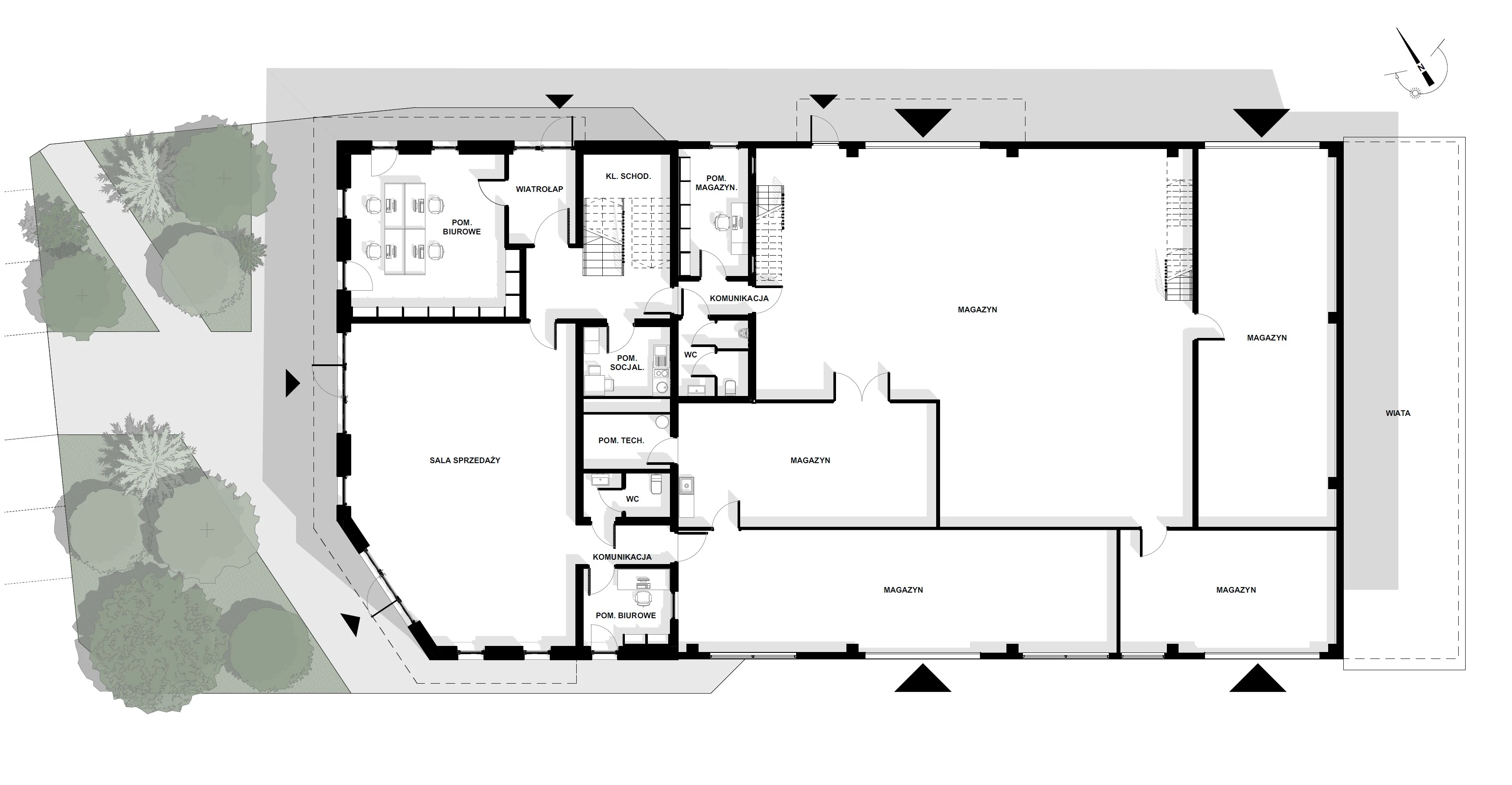
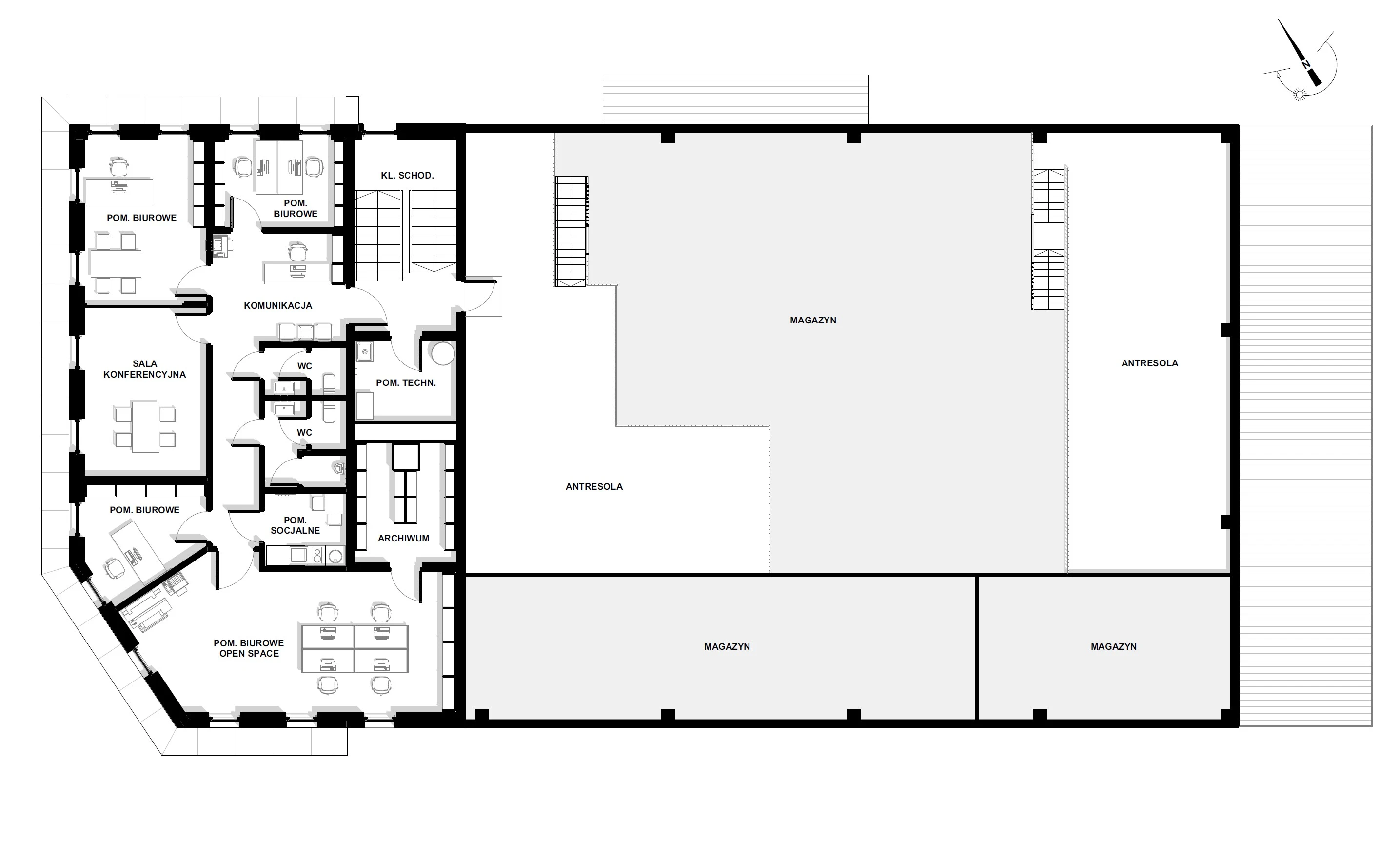
Projekt obejmuje wykonanie kompletnego projektu budowlanego i technicznego w zakresie architektury oraz konstrukcji budynku usługowo-magazynowego, pełniącego funkcję siedziby firmy Kosmala Electric. Obiekt zaprojektowano jako czytelnie podzielony funkcjonalnie – z reprezentacyjną częścią frontową oraz zapleczem techniczno-magazynowym w głębi działki.

W przedniej części budynku zlokalizowano strefę usługową i administracyjną, obejmującą biura, salę sprzedaży, pomieszczenia socjalne, techniczne oraz zaplecze sanitarne. Układ funkcjonalny tej strefy zaprojektowano z myślą o codziennej obsłudze klientów oraz sprawnej pracy zespołu, z wyraźnym oddzieleniem części dostępnej publicznie od zaplecza firmowego. Duże przeszklenia i czytelna forma bryły podkreślają nowoczesny, profesjonalny charakter siedziby.

Tylna część obiektu to hala magazynowa, zaprojektowana w sposób umożliwiający elastyczne użytkowanie, sprawną logistykę oraz bezpośrednie powiązanie z częścią techniczną i zapleczem. Konstrukcja budynku oraz jego proporcje podporządkowane zostały funkcji, przy jednoczesnym zachowaniu spójnej i uporządkowanej formy architektonicznej.

Istotnym elementem założenia jest zagospodarowanie terenu – na działce zaprojektowano nowoczesne carporty, wiaty na sprzęt i maszyny oraz czytelny układ komunikacji pieszej i kołowej. Całość tworzy funkcjonalny kompleks, dostosowany do charakteru działalności firmy oraz jej zaplecza technicznego.

Projekt wymagał ścisłej współpracy i konsultacji z rzeczoznawcami ds. ochrony przeciwpożarowej oraz sanitarno-higienicznych, co miało najważniejsze znaczenie dla prawidłowego zaprojektowania układu funkcjonalnego i spełnienia wymagań formalnych. Efektem jest nowoczesny, uporządkowany obiekt firmowy, który łączy funkcjonalność zaplecza technicznego z reprezentacyjną architekturą siedziby firmy.

Budynek siedziby Kosmala Electric - rysunek — rysunek techniczny, budynek usługowy, Leszno 2024 | Potrzeba Projekty
Budynek siedziby Kosmala Electric - rysunek — rysunek techniczny, budynek usługowy, Leszno 2024 | Potrzeba Projekty
Budynek siedziby Kosmala Electric - rysunek — rysunek techniczny, budynek usługowy, Leszno 2024 | Potrzeba Projekty
Budynek siedziby Kosmala Electric - rysunek — rysunek techniczny, budynek usługowy, Leszno 2024 | Potrzeba Projekty