Bar sushi w Lesznie

Architektura, która odsłania smak

Inwestycje

Zakres

Koncepcja architektoniczna budynku usługowego

Dane

  • Lokalizacja: Leszno
  • Rok: 2024
  • Powierzchnia: użytkowa: 140 m2
  • Inwestor: Prywatny przedsiębiorca

Projekt koncepcyjny budynku usługowego – restauracji sushi w Lesznie – oparto na prostocie formy oraz maksymalnej czytelności funkcji. Najważniejszym założeniem było stworzenie obiektu, który już z zewnątrz jednoznacznie komunikuje swój charakter i zaprasza do środka.

Frontowa elewacja została zaprojektowana jako duża, przeszklona witryna, odsłaniająca wnętrze restauracji i eksponująca jej funkcję w przestrzeni miasta. Dzięki temu lokal jest widoczny, „żywy” i czytelny zarówno w ciągu dnia, jak i po zmroku. Architektura nie ukrywa tego, co dzieje się wewnątrz – wnętrze staje się częścią elewacji.

Bryła budynku jest prosta i zwarta, pozbawiona zbędnych zabiegów formalnych. Całość podporządkowano klarownej geometrii oraz naturalnym proporcjom. Charakter obiektu budują detale: rytm przeszkleń, kontrast między surową bryłą a ciepłem materiałów wykończeniowych oraz wyraźnie zaznaczona strefa wejściowa.

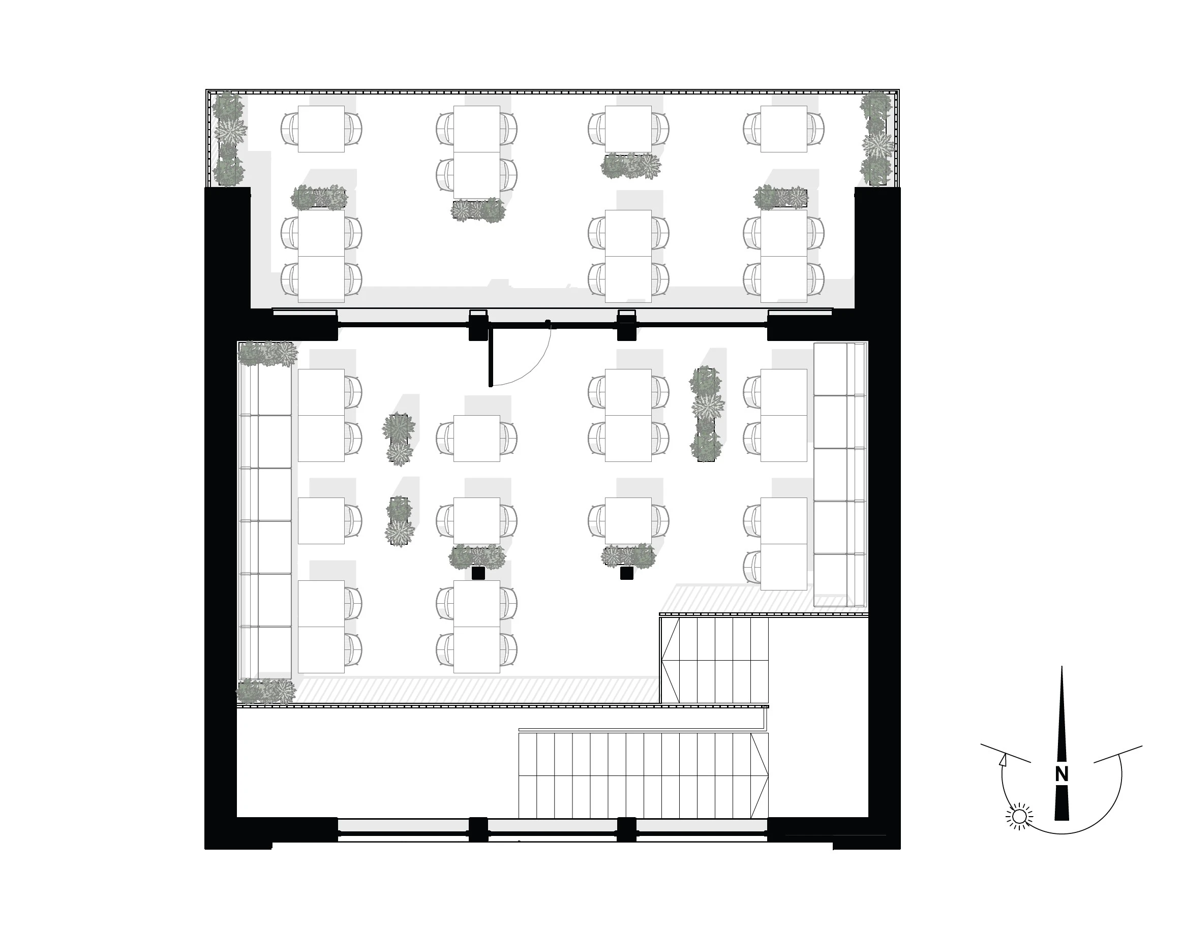
Wnętrze restauracji zaprojektowano jako przestrzeń dwukondygnacyjną z czytelnie wyeksponowaną, drewnianą konstrukcją dachu. Konstrukcja nie jest ukryta – staje się elementem wystroju i buduje atmosferę miejsca. Naturalne drewno, stonowana kolorystyka oraz proste materiały podkreślają rzemieślniczy charakter kuchni i bezpośredni kontakt gości z procesem przygotowywania potraw.

Układ funkcjonalny został zaplanowany tak, aby zapewnić płynną obsługę gości, dobrą widoczność baru oraz komfortowe strefy konsumpcji na obu poziomach. Przestrzeń jest czytelna, intuicyjna i elastyczna – gotowa zarówno na codzienne funkcjonowanie, jak i większe obłożenie lokalu.

Całość projektu opiera się na jednym, spójnym założeniu: prosta architektura, szczerość materiałów i funkcja widoczna na pierwszy rzut oka.

Bar sushi w Lesznie - rysunek — rysunek techniczny, lokal gastronomiczny, Leszno 2024 | Potrzeba Projekty
Bar sushi w Lesznie - rysunek — rysunek techniczny, lokal gastronomiczny, Leszno 2024 | Potrzeba Projekty
Bar sushi w Lesznie - rysunek — rysunek techniczny, lokal gastronomiczny, Leszno 2024 | Potrzeba Projekty